- 6 personas
- Admite mascotas
- Baño privado
- 2 dormitorios
Destaca o Chalet Toronto
- Grandes puertas francesas
- Cocina totalmente equipada
- Dos dormitorios
- Ducha extragrande
- Interior moderno
Información general
¡Apto para 6 personas, este chalet contemporáneo lo ofrece todo en tamaño extragrande!
Con grandes ventanales y puertas correderas, una espaciosa cama doble y una generosa ducha, la comodidad está garantizada. Su característica única son las puertas de patio de 3 metros de ancho, que introducen la terraza en la zona de estar y proporcionan una luz óptima.
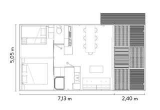
El chalet de 35 m² tiene un dormitorio con cama de matrimonio (160x200), un dormitorio con cama de matrimonio y una cama alta individual, y un sofá cama en el salón. La amplia zona de estar y la cocina totalmente equipada con vajilla, microondas, cafetera, frigorífico y fogones completan la estancia.
El cuarto de baño tiene una ducha XXL de 100x180 y un WC separado.
Alrededores
- Ommen
- Disfruta desde el agua
- Reserva natural Owl Camp
- Día de diversión familiar
Instalaciones y actividades en Chalet Toronto
Cocina
- Inventario de cocina
- Batería de cocina
- Frigorífico (con congelador)
- Máquina de café (filtro)
- Microondas
- Hervidor
- Placa de cocina
- Cocina
Consultado en
- Pasos hacia el alojamiento
Dormitorio
- Litera (1)
- Cama doble (2)
- Sofá cama (1)
- Número de habitaciones (2)
General
- Aparcamiento en el alojamiento
- Superficie (m2) (5)
- Sin humo
- Mascotas bienvenidas
- Calefacción
Jardín/terraza
- Se admiten barbacoas
- Terraza / porche (semicubierto)
- Terraza privada
- Muebles de jardín
Sala de estar
- Zona de estar
- Comedor
Cuarto de baño
- Cuarto de baño (1)
- Baño
- Ducha (1)
- Inodoro (1)
- Fregadero
Importantes instalaciones y ambiente del parque
Huttopia De Roos
toda la información del parque- A orillas del Vecht
- El Vechtdal con numerosas reservas naturales
Actividades (deportivas)
- Pista de baloncesto
- Alquiler de bicicletas
- Alquiler de canoas/kayaks
- Terreno deportivo
- Mesa de ping-pong
- Campo de fútbol
Actividades en la zona
- Ciclismo
- Piragüismo
- Museos (<10 KM)
- Bicicleta de montaña
- Parque Natural (<20 KM)
- Pesca
- Caminar
Instalaciones generales
- Recepción
- Servicio de desayuno
- Wifi área general (gratis)
- Tienda
Lengua hablada
- Holandés
- Inglés
Niño y adolescente
- Sala de juegos
- Kidsclub
- Parque infantil (exterior)
Piscina
- Lago para nadar
Ubicación
- Junto al agua
Comida y bebida
- Foodtruck
- Bar / Bistro
Proveedor
- Huttopia
Disponibilidad y precios
Información práctica
-
Condiciones de cancelación
Condiciones de cancelación de Huttopia
La política de cancelación es la siguiente
- Si se cancela hasta 30 días antes de la fecha de llegada, se cargará el 40% del coste.
- Si se cancela a partir de 29 días antes de la fecha de llegada, se cargará el 100% del coste.
Ten en cuenta que los gastos de reserva y el coste de la opción de seguro no son reembolsables, independientemente de la fecha de cancelación.
-
Horarios de entrada y salida
Facturación: 16:00
Salida: 11:00
-
Noches mínimas : 1
Preguntas frecuentes
¿Está permitido fumar en el alojamiento?
No está permitido fumar en los alojamientos.
¿Se puede hacer una barbacoa en el camping?
Se permite hacer barbacoas en el parque, siempre que sean eléctricas. El carbón no está permitido.
¿Se admiten perros en el parque y en los alojamientos?
Sí, tu acompañante puede venir contigo de vacaciones.
¿Tengo que pagar la tasa turística?
Sí, todavía hay que pagar la tasa turística in situ. Puedes consultar el importe exacto en el resumen de costes.
¿Cuál es el horario de entrada y salida en Chalet Toronto?
La facturación en Huttopia De Roos comienza en 16:00. La salida debe hacerse antes de 11:00.¿Está abierto Huttopia De Roos todo el año?
No, Huttopia De Roos está abierto desde 17 abril hasta 26 octubre.¿Hay algún restaurante en Huttopia De Roos?
No, no hay restaurantes en Huttopia De Roos. Sin embargo, el parque ofrece foodtruck y bar / Bistro¿Hay piscina en Huttopia De Roos?
En el parque encontrarás lago para nadar.¿Hay wifi en Chalet Toronto?
El parque ofrece gratis wifi en los espacios compartidos.¿Hay una tienda de camping en Huttopia De Roos?
Sí, en Huttopia De Roos encontrarás tienda.¿Hay un servicio de alquiler de bicicletas en Huttopia De Roos?
Sí, en Huttopia De Roos encontrarás alquiler de bicicletas.¿Está permitido fumar en Chalet Toronto?
No, no está permitido fumar en este alojamiento.¿Se admiten mascotas en Chalet Toronto?
Sí, se admiten mascotas en el alojamiento. Al hacer la reserva, asegúrate de indicar que quieres llevar un animal de compañía para poder comprobar si el alojamiento admite mascotas.¿Tengo que llevar mi propia ropa de cama?
Sí, tienes que traer tu propia ropa de cama.¿Se puede aparcar en Chalet Toronto?
Sí, es posible aparcar directamente en el alojamiento.¿Tengo que llevar mis propias toallas a Chalet Toronto?
Sí, tienes que traer tus propias toallas.
Huttopia De Roos



Lo que debes saber sobre el parque
Bienvenido al camping Huttopia De Roos, uno de los más antiguos de Holanda, situado junto al Vecht, en Overijssel. Descubre el hermoso paisaje natural con sus características dunas y árboles como el espino negro, el espino blanco y los robles centenarios. El camping es un oasis de paz donde podrás relajarte. En la gran tienda safari, frente al camión de comida, está la zona de reunión, el lugar para socializar, jugar, leer o desconectar.
Información práctica
- Facturación: 16:00, salida: -11:00
- Abierto desde 17 abril hasta 26 octubre
- Wifi área general (gratis)
- condiciones de reserva
- condiciones de cancelación
Parque anotó con un 9.4
147 reseñas
- 118
- 18
- 9
- 1
- 1
-
27 Apr 2026
Ya he visitado muchas huttopias en Francia. Pero esta es realmente la mejor de Holanda. ¡¡¡Super!!!
esto es una traducción, pulsa aquí para el original
Al vele huttopia's bezocht in frankrijk. Maar dit is echt de beste in Nederland. Super!!
-
24 Apr 2026
Bonito camping cerca de la naturaleza
esto es una traducción, pulsa aquí para el original
Schöner naturnaher Campingplatz
-
20 Apr 2026
-
-
10 Apr 2026
Camping precioso y espacioso. Personal amable. No lo dudes, reserva. No dudes en hacer senderismo desde el camping.
esto es una traducción, pulsa aquí para el original
Mooie ruime camping. Vriendelijk personeel. Niet twijfelen, gewoon boeken. Ga zeker vanuit de camping wandelen.
-
07 Apr 2026
muy limpio, mucha naturaleza
esto es una traducción, pulsa aquí para el original
sehr sauber , viel Natur
-
06 Apr 2026
Estuvimos aquí con la autocaravana. Bonitos lugares y un camping precioso. Diferentes lugares, así que hay para todos los gustos. El camping es bastante grande pero no lo parece. La pizza era muy sabrosa y el bar también parece acogedor. El personal es muy amable y servicial. Volveremos
esto es una traducción, pulsa aquí para el original
Wij waren met de camper hier. Mooie grote plekken en een mooie camping. Verschillende plekken dus voor ieder wat wils. De camping is best groot maar voelt zo niet aan. Pizza was heel lekker en de bar ziet er ook gezellig uit. Personeel is heel vriendelijk en behulpzaam Wij komen terug